協賛ハウスメーカープラン集
Plan Collection
フローレスタ須和間は建築条件なし!

最高の品質をお届けするために、トヨタグループの技術力とテクノロジーを活かし、住まいの約85%を工場で作り込んでいます。優れた耐震性や可変性を備えているからこそ、60年長期保証で「人生をごいっしょに」という想いのもとに、家づくりを追求しております。
8-3-4区画 参考プラン Biss NY_006





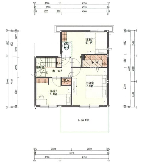
8-4-7区画 参考プラン SY_037
家族でまったりと過ごす
庭が広く、家で擬似キャンプをしたり、夏にはプールを出して遊んだりと家族で思い出をたくさん作ることができます。ワンちゃんを飼っているご家族なら、柵を設置してドッグランにしたりと、自由度の高い外構デザインです。





1階床面積 55.61㎡(16.82坪)
2階床面積 45.50㎡(13.76坪)
延床面積 101.11㎡(30.58坪)
土地面積 200.73㎡(60.72坪)
*建築条件なしとは:お客様のお好きな建築会社や工務店さんなどで、間取り・建物設備やグレードなどが自由に決められます。
各メーカー様の参考プランは、フローレスタ須和間対応の「デザイン案」の参考にしてください。また、各メーカー様の「予算目安」はインフィメーションでお気軽にご相談をお受けいたします。マイホームサクセスストーリーの一助なれば幸いです。