協賛ハウスメーカープラン集
Plan Collection
フローレスタ須和間は建築条件なし!

十人十色に対応する住宅設計・提案力
コンセプトは「非日常空間を日常に」。まるで自由設計のようなセミオーダー住宅“DX-series“をはじめ完全自由設計を実現できる高い技術力・設計力・施工力は公共施設の品質基準をクリアした「住宅性能」です。断熱性能は新省エネ基準を上回るHEAT20(G2)クラス水準まで対応、制振・耐震のダブル対応で地震の揺れと耐震性能の劣化まで防止します。
8-5-8区画 参考プラン 平屋



1階床面積:83.00㎡(25.10坪)
延床面積:82.81㎡(25.05坪)
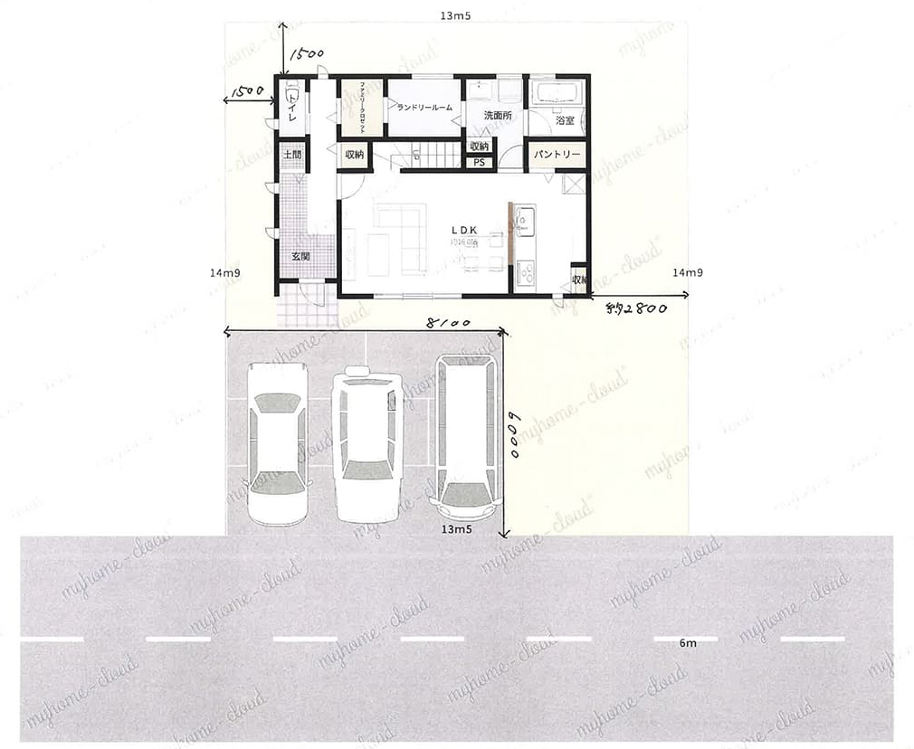
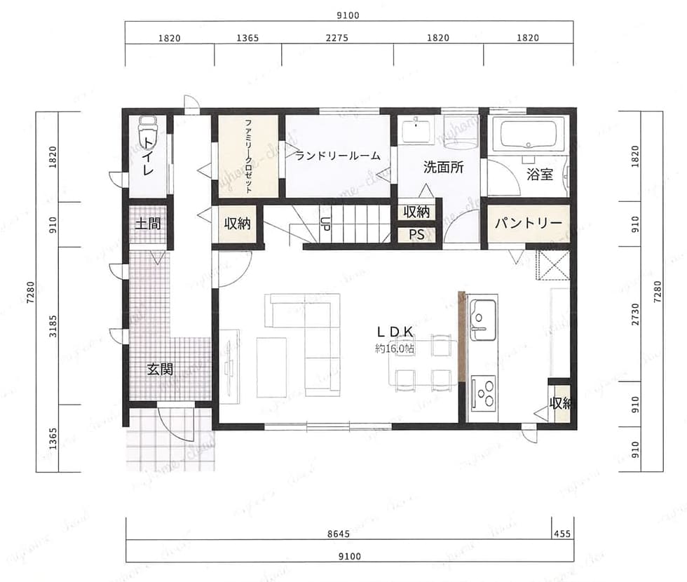
8-5-8区画 参考プラン 2階建




*建築条件なしとは:お客様のお好きな建築会社や工務店さんなどで、間取り・建物設備やグレードなどが自由に決められます。
各メーカー様の参考プランは、フローレスタ須和間対応の「デザイン案」の参考にしてください。また、各メーカー様の「予算目安」はインフィメーションでお気軽にご相談をお受けいたします。マイホームサクセスストーリーの一助なれば幸いです。