協賛ハウスメーカープラン集
Plan Collection
フローレスタ須和間は建築条件なし!

何気ない会話から始まる楽しい家づくり
注文住宅、建売住宅、エクステリア、メンテナンス、リフォームはエンジョイホームへ。
お客様の思い出に残る楽しいづくり、大切な住まいをしっかり守ることをお約束いたします。
北道路 参考プラン



1階床面積:62.10㎡(18.78坪)
2階床面積:39.74㎡(12.02坪)
延床面積:101.84㎡(30.80坪)
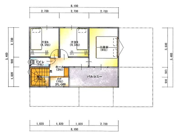
南道路 参考プラン



1階床面積:69.56㎡(21.04坪)
2階床面積:36.43㎡(11.02坪)
延床面積:105.99㎡(32.06坪)
*建築条件なしとは:お客様のお好きな建築会社や工務店さんなどで、間取り・建物設備やグレードなどが自由に決められます。
各メーカー様の参考プランは、フローレスタ須和間対応の「デザイン案」の参考にしてください。また、各メーカー様の「予算目安」はインフィメーションでお気軽にご相談をお受けいたします。マイホームサクセスストーリーの一助なれば幸いです。